Pool house en ossature bois – Wallonie
Date:
janvier 25, 2026
Implanté en Province de Namur, ce pool house détaché de l’habitation principale a été conçu comme un élément autonome venant structurer l’espace piscine et organiser les usages extérieurs.
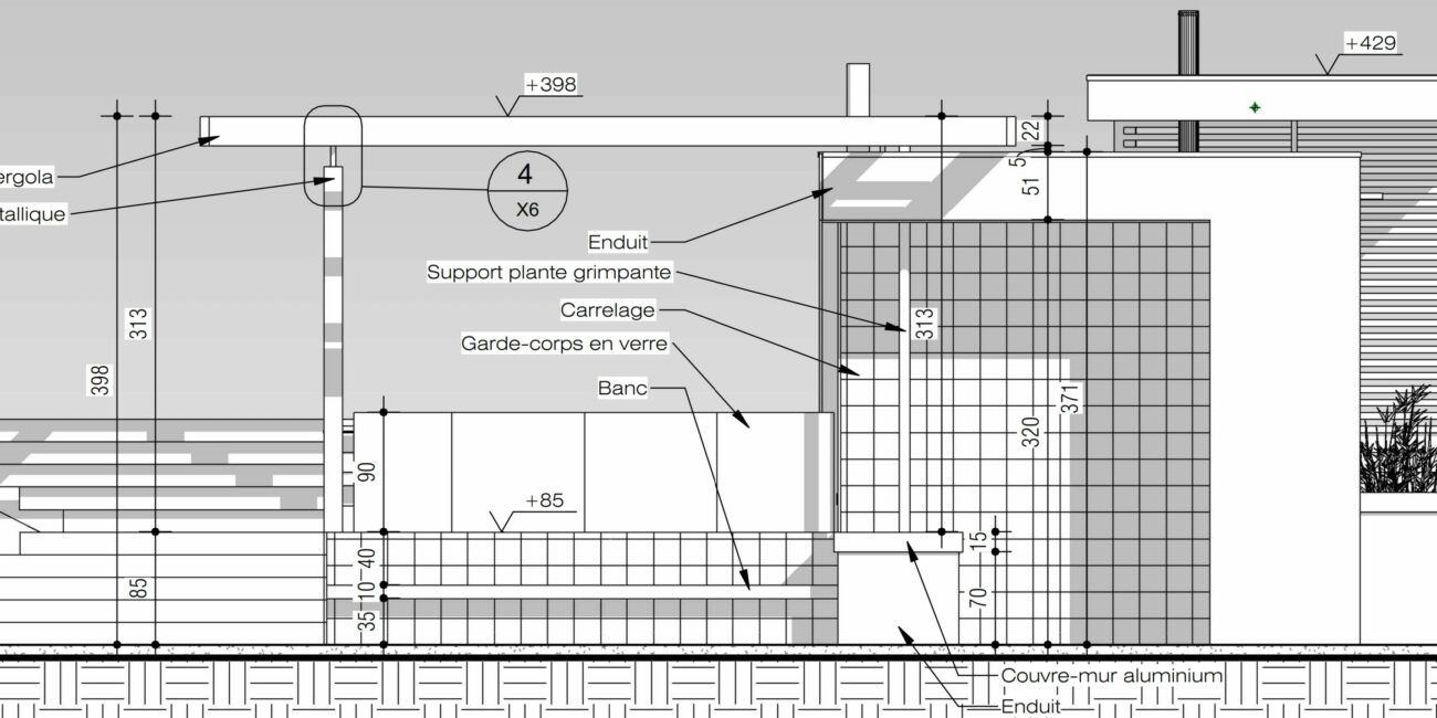
Plutôt qu’une toiture pleine, le projet s’articule autour d’une pergola aux lignes fines et horizontales, créant un filtre entre ciel et espace habité. Cette structure légère définit l’espace sans l’enfermer, instaurant un dialogue permanent entre architecture, lumière et paysage.
Le projet repose sur une dualité maîtrisée :
La pergola ne couvre pas, elle structure.
Elle crée de l’ombre, dessine des lignes, rythme la perspective et accompagne le regard vers la piscine.
Son débord généreux protège les espaces de détente tout en conservant une grande ouverture visuelle sur le jardin.
Le parement en mosaïque aux tonalités vertes et minérales prolonge visuellement l’eau du bassin. Les reflets créent une continuité chromatique entre façade, assise et piscine.
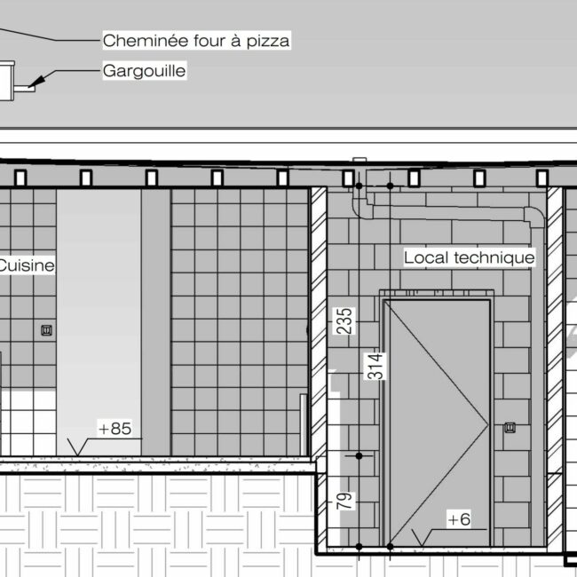
Le pool house comprend :
L’ensemble fonctionne comme une séquence spatiale progressive entre la maison, la terrasse et le bassin.
L’éclairage intégré en sous-face de la pergola souligne le rythme des lames horizontales et renforce la profondeur des perspectives.
À la tombée du jour, la structure devient un élément graphique lumineux, mettant en valeur la texture des matériaux et la surface de l’eau.
Architecte basé à Villers-le-Bouillet, j’interviens en Province de Namur, en Province de Liège et en Wallonie pour des projets d’extensions, constructions légères et aménagements extérieurs intégrant une réflexion architecturale globale.
Plus qu’un simple abri, cette pergola architecturale transforme le pool house en véritable pièce extérieure. Elle définit l’espace sans le fermer, apporte confort et ombre, et renforce l’identité contemporaine de l’ensemble.
Un premier échange permet d’étudier l’implantation, la structure et l’intégration paysagère de votre projet.
Cliquez ici pour recevoir une analyse personnalisée
janvier 25, 2026

Architecte indépendant spécialisé en architecture durable, suivi de chantier et mission de responsable PEB.
Conception de maisons neuves, rénovations et extensions intégrant performance énergétique et développement durable.
Aménagement d’intérieur pensé comme le prolongement naturel de l’architecture.
Interventions à Villers-le-Bouillet, Huy, Waremme, Liège et en Wallonie.
Tel: +32 488 86 59 59

