Transformation basse énergie – Verlaine
Extension d’une habitation récente
Agrandir sans compromettre la performance
Cette mission concerne l’extension d’une maison récente devenue trop exiguë pour ses occupants.
En effet, l’évolution des besoins familiaux nécessitait une surface supplémentaire, mais sans compromettre la qualité architecturale ni la performance énergétique existante.
L’objectif n’était pas simplement d’ajouter des mètres carrés. Au contraire, il s’agissait de créer un volume parfaitement intégré, performant et harmonieux avec l’existant.
Ainsi, l’extension devient une nouvelle pièce de vie largement ouverte sur le jardin, offrant luminosité, confort et continuité spatiale.
Un volume contemporain, sobre et lisible
Le projet prend la forme d’un volume compact à toiture plate, clairement identifiable par rapport à la maison existante.
D’une part, cette approche affirme une écriture contemporaine assumée.
D’autre part, elle permet de distinguer clairement l’intervention nouvelle de l’architecture d’origine.
Le traitement architectural repose sur :
- Volume simple et épuré
- Façades largement vitrées côté jardin
- Menuiseries fines et performantes
- Lecture claire entre existant et intervention
L’extension ne cherche donc pas à imiter. Au contraire, elle dialogue avec l’architecture existante tout en conservant sa propre identité.
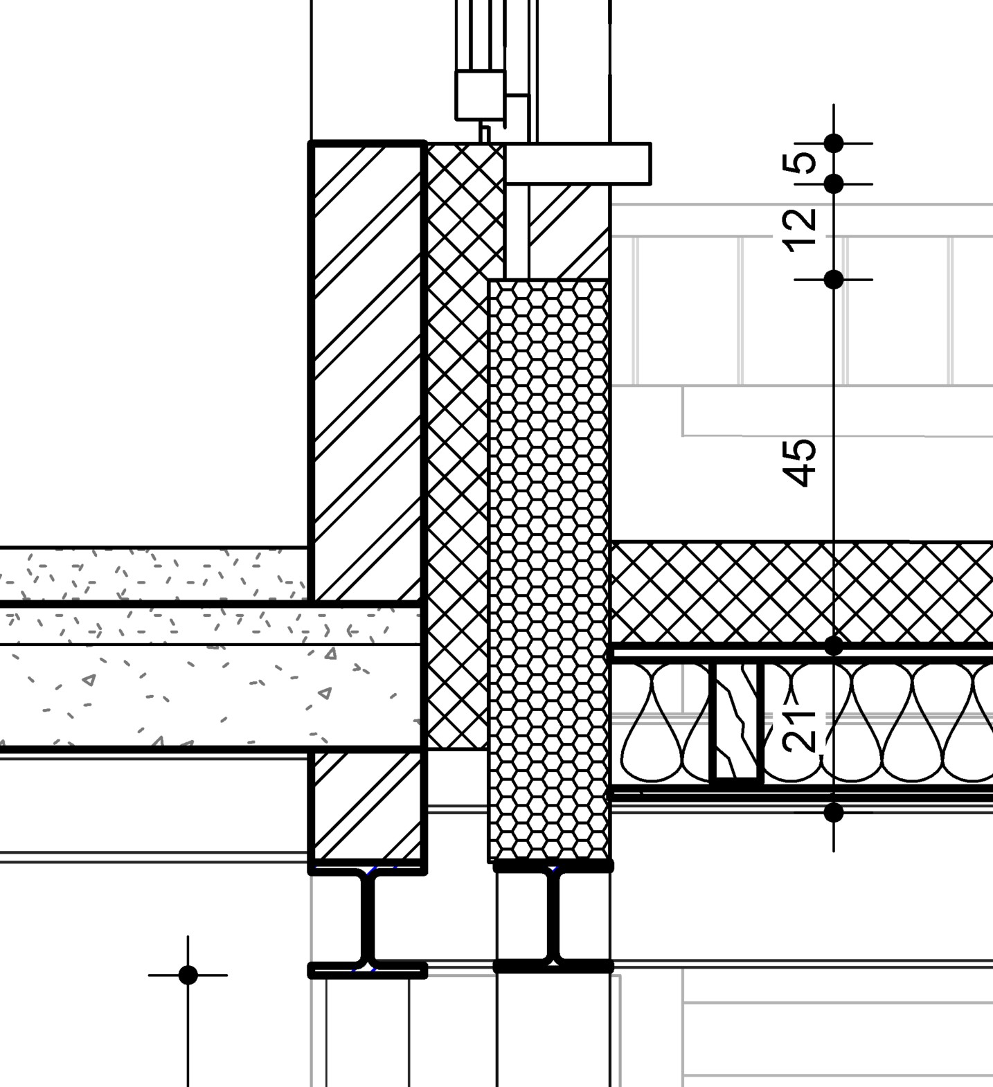
Extension basse énergie
L’enjeu principal : éviter toute rupture énergétique entre l’existant et le nouveau volume.
Dès la phase de conception, une attention particulière a été portée à :
- La continuité de l’isolation
- Le traitement des ponts thermiques
- Le raccordement précis des structures
- L’étanchéité à l’air
- La gestion des seuils et des dalles
Par conséquent, l’extension a été conçue selon les standards basse énergie afin de garantir :
- Un confort thermique hiver comme été
- La maîtrise durable des consommations
- Une continuité énergétique globale
Conception intégrale en BIM
L’ensemble du projet a été développé en BIM (modélisation 3D complète).
En effet, cette méthodologie permet d’anticiper les contraintes techniques avant même le début du chantier
Grâce à la modélisation numérique, il a été possible :
- De vérifier précisément les options structurelles et de fournir une documentation claire pour l’exécution
- D’optimiser les raccords avec l’existant
- De résoudre en amont les nœuds constructifs complexes
- D’informer correctement les intervenants
Notamment, la modélisation 3D détaillée a permis de traiter avec précision :
- Les interfaces dalle existante / nouvelle dalle
- Les appuis de structures métalliques
- Les continuités d’isolation
- Les risques de condensation
Ainsi, le BIM devient ici un véritable outil de qualité, mais également un levier de maîtrise budgétaire et technique.
Enfin, cet outil de conception a également permis au client de consulter les solutions retenues tout au long de l’avancement de l’étude, via une plateforme de partage de la maquette 3D en ligne.
Qualité d’exécution & suivi de chantier
La réussite d’une extension réside dans les détails invisibles.
Un suivi de chantier régulier a assuré :
- La mise en œuvre correcte des membranes d’étanchéité
- La continuité parfaite des isolants
- La précision des raccords menuiseries / maçonnerie
- Le respect strict des plans d’exécution
L’objectif : une extension techniquement irréprochable et durable
Une nouvelle spatialité
L’extension transforme l’usage quotidien de la maison :
- Ouverture totale vers le jardin
- Apport généreux de lumière naturelle
- Fluidité entre intérieur et extérieur
- Surface de vie adaptée aux besoins actuels des occupants
Le projet ne se limite pas à un agrandissement, il redéfinit l’équilibre de l’habitation.
Vous envisagez une extension ?
Une extension réussie nécessite une approche globale : architecture, technique, énergie et exécution doivent être pensés simultanément.
Vous avez un projet similaire ?
Cliquez ici pour recevoir une analyse personnalisée
Pour aller plus loin
Guide rénovation
Pour en savoir plus sur les prix et les étapes d'un projet de transformation, consultez mon guide sur la rénovation de maison en Belgique
Architecte à Liège
Les raisons pour lesquelles faire appel à un architecte de votre région
Date:
janvier 24, 2026


