Formations Revit & BIM en Wallonie et Bruxelles
Apprenez le BIM avec un architecte en activité
Formations concrètes basées sur des projets réels, adaptées aux bureaux et entreprises.
Architecte indépendant basé en région liégeoise, je propose des formations orientées pratique, adaptées aux bureaux d’architecture, entreprises et indépendants.
Actif depuis plus de 20 ans, j’utilise le BIM au quotidien sur des projets réels, de la conception au chantier.
Très bonne formation AutoCAD 2D, intéressante et adaptée à nos besoins. Formateur sympa et à l'écoute.
Frédéric G.
Security and SafetyUne approche différente des centres de formation
Contrairement aux formations classiques, l’apprentissage se fait ici à partir de projets réels, avec une vision complète du métier d’architecte.
- Méthodologie utilisée en agence
- Projets réellement construits
- Vision globale : conception, technique et chantier
- Approche BIM appliquée, pas théorique
- Adaptation au niveau et aux besoins
Des formations adaptées à chaque étape du projet
Formation Revit & BIM - Produire un projet complet
Maîtrisez un workflow BIM complet, de l’esquisse au chantier.
- Modélisation complète du bâtiment
- Gestion des vues et documentation
- Nomenclatures et quantitatifs
- Familles paramétriques
- Coordination des intervenants
Formation idéale pour :
- architectes
- bureaux d’études
- entreprises
Formation SketchUp - Concevoir rapidement
Concevoir rapidement et efficacement vos projets.
- Modélisation rapide
- Volumes et implantation
- Présentation client
Formation V-Ray pour SketchUp - concvaincre le client
Produisez des images réalistes pour convaincre vos clients.
- Rendus photoréalistes
- Lumières et matériaux
- Mise en scène du projet
Formation AutoCAD - Détailler techniquement
Produire des plans techniques précis et structurés.
- Plans d’exécution
- Détails techniques
- Organisation des fichiers
À qui s’adressent ces formations ?
Architecte
Bureau d'étude
Entreprise de construction
Dessinateur / Projeteur
Indépendant
Formation BIM sur mesure pour bureaux et entreprises
Chaque structure a ses méthodes et ses contraintes. Les formations peuvent être entièrement adaptées à vos projets et à votre organisation.
- Mise en place d’un workflow BIM
- Structuration des projets
- Création de familles Revit sur mesure
- Standardisation des processus
- Accompagnement d’équipe
- ...
Formation en Wallonie. Basé en région de Liège, j’interviens en Wallonie et à Bruxelles : Liège, Namur, Brabant wallon et alentours.
Une approche basée sur des projets réels


Avant-après
Comparaison entre l'image de synthèse initiale et le projet réalisé
Revit
Modélisation 3D de la coupure thermique d'une ouverture de façade
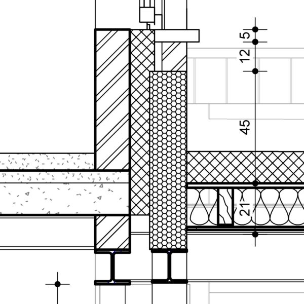
Revit
Détail technique extrait de la modélisation 3D de la coupure thermique
Sketchup
Etude de l'aménagement d'un restaurant de 500 places, organisation, couleurs et matériaux
V-Ray
Image de synthèse réalisée pour présenter le projet au client
Autocad
Réalisation d'un plan 2D dans Autocad pour dépôt de permis de bâtir
Revit
Modélisation des techniques d'un bâtiment tertiaire pour détection des interférences (clashs) avant exécution
Revit
Modélisation du ferraillage du pied de fondation pour vérification
Sketchup + Vray
Interface V-Ray et Sketchup lors de l'étude du revêtement d'un meuble sous lavabo
V-ray
Image de synthèse réalisée pour étudier l'éclairage indirect du projet
Besoin d’une formation adaptée à votre activité ?
Contactez-moi pour définir ensemble un programme sur mesure.
Une formation très agréable, précise et conviviale. Régis est à l'écoute, extrêmement patient et compétent. Si vous cherchez à vous réorienter, à explorer d'autres domaines professionnels, et bien sûr à apprendre de nouveaux logiciels, vous êtes au bon endroit. Foncez sans hésiter !
Véronique E.
Architecte d'intérieurIls me font confiance


















