Formation Revit & BIM pour bureaux d’étude et entreprises
Déployez le BIM dans votre pratique avec un architecte en activité.
Formation et accompagnement Revit orientés production réelle, adaptés aux méthodes de votre structure.
Sur les 3 volets du logiciel
Architecture
Structure
Techniques spéciales
Excellente formation REVIT Structure par Regis. Un tout grand merci pour ton aide précieuse. La formation reprend tous les éléments fondamentaux pour bien démarrer dans le monde de la conception. Je recommande
Anthony M.
Entreprise de constructionUne approche orientée pratique professionnelle
Cette formation s’adresse aux professionnels souhaitant intégrer Revit dans leur production quotidienne, avec une approche directement applicable en bureau et sur chantier. L’objectif n’est pas seulement de maîtriser un logiciel, mais de structurer une méthode de travail efficace et cohérente.
Mise en place d’un workflow BIM opérationnel
Structuration du projet
- Organisation du modèle Revit
- Gestion des niveaux et des vues
- Mise en place de standards
Production des documents
- Plans, coupes, façades
- Détails techniques
- Mise en page professionnelle
Exploitation des données
- Nomenclatures
- Quantitatifs
- Extraction d’informations
Familles paramétriques
- Création de bibliothèques adaptées
- Standardisation des éléments
- Optimisation du temps de production
Coordination
- Méthodologie BIM
- Organisation des échanges
- Travail collaboratif
- Détection de clashs
Toutes techniques
- Architecture
- Techniques spéciales
- Structure
Un accompagnement destiné aux professionnels
Bureau d'architecture
Bureau d'étude
Entreprise de construction
Equipe de production
Indépendant souhaitant structurer leur pratique
Un accompagnement adapté à votre structure
Chaque bureau a ses méthodes, ses contraintes et ses objectifs. L’accompagnement est entièrement adapté à votre organisation et à vos projets en cours.
Exemples d’accompagnement
- Mise en place du BIM en bureau
- Structuration de templates Revit
- Création de familles Revit sur mesure
- Optimisation des processus
- Formation et montée en compétence des équipes
Intervention en Wallonie et à Bruxelles
Une méthode issue de projets réellement construits
L’accompagnement s’appuie sur des projets concrets, permettant de comprendre les enjeux réels de production, de coordination et de mise en œuvre. Chaque étape est abordée dans une logique opérationnelle : concevoir, produire, coordonner et réaliser.
Avant-après


Architecture
Modélisation 3D de la coupure thermique d'une ouverture de façade
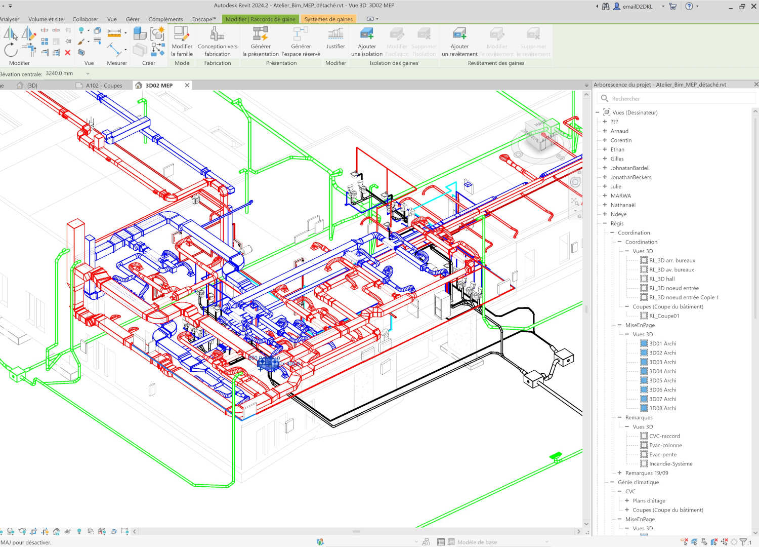
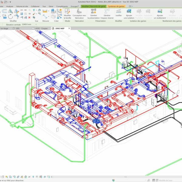
MEP
Modélisation des techniques d'un bâtiment tertiaire pour détection des interférences (clashs) avant exécution
Structure
Modélisation du ferraillage du pied de fondation pour vérification
Vous souhaitez structurer votre production BIM ?
Contactez-moi pour échanger sur vos besoins et définir un accompagnement adapté.
J'ai eu une formation Revit pour les MEP et Structures, Régis est très compétent et pédagogue. Merci !
Quentin T.
Bureau d'étudeJe recommande vivement Regis pour toute formation liée aux logiciels de dessin 3D et 2D.
Mehdi M.
Bureau d'architectureIls me font confiance


















